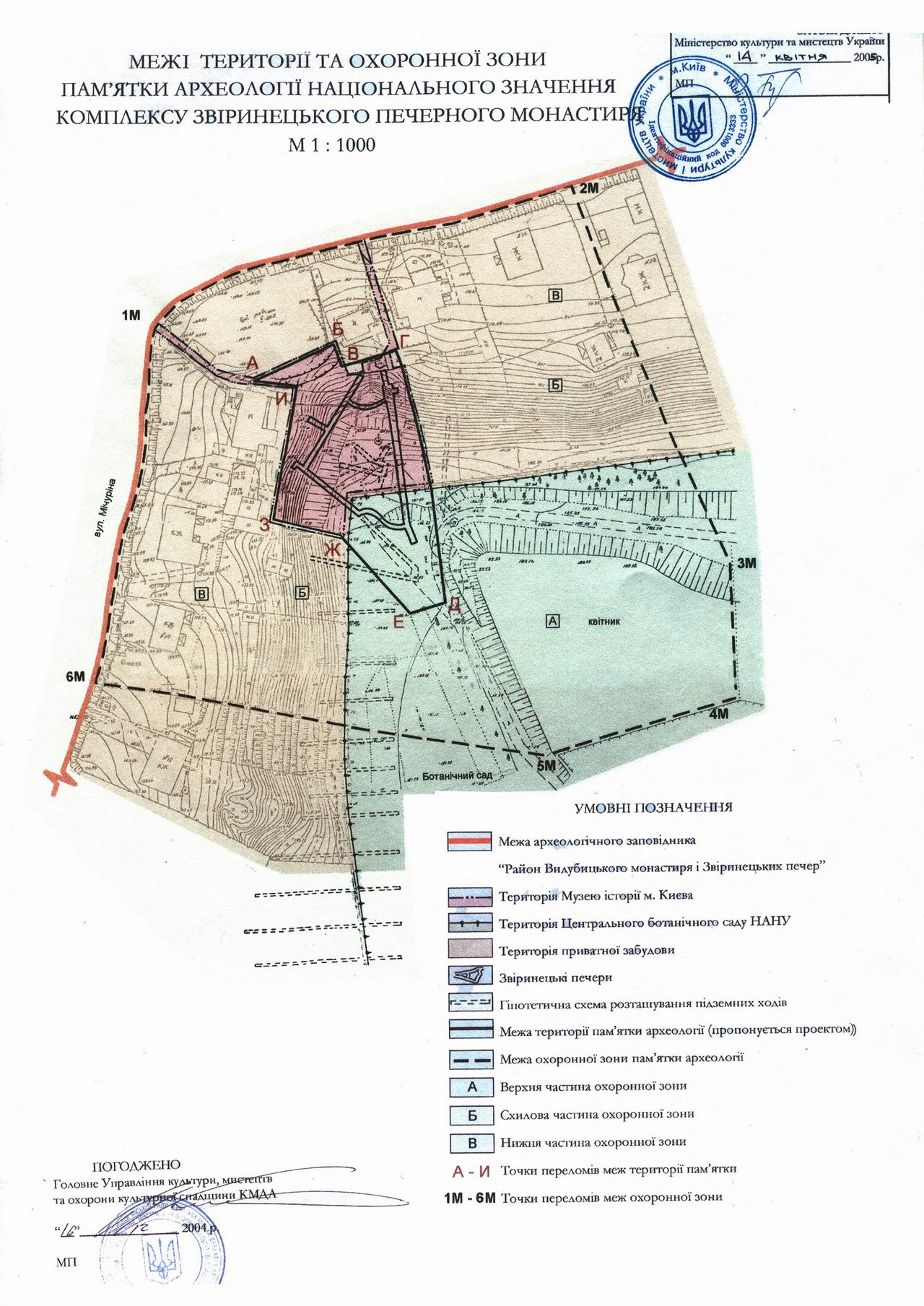
Зміст Рішення КМР Про затвердження звіту про ситуації навколо Національного ботанічного саду, 2018-10 - в звіті не іде мова про те, що ділянка забудови "Мічуріна 10 - пров Бастіонний 5А-13Б" на території національного археологічного заповідника Звіринецькі печери Back to Top Back to Top Back to Top Проект плану зонування, 2015 (фрагмент): Back to Top