ПРОДАЖ будівлі на вул. Введенська, 8

Введенська 8 Проект банн

Введенська 8 ТЕП

Зміст

  1. Місце розташування ділянки будівництва
  2. Фото сучасного стану ділянки
  3. Існуючий проект житлового будинку
  4. ...

BtH Back to Home


1. Місце розташування ділянки будівництва

Введенська 8 Гугл-карта 1

BtH Back to Home


Введенська 8 Гугл-карта 2

BtH Back to Home


Введенська 8 Гугл-карта 3

BtH Back to Home


2. Фото сучасного стану ділянки

Введенська 8 Фото ділянки 1

BtH Back to Home


3. Існуючий проект житлового будинку

Лого - Пам Заказчику

Лого - Дан-Крюг эфф

BtH Back to Home


Місце розміщення

Введенська 8 Проект с1

BtH Back to Home


Викопіювання - Топозйомка

Введенська 8 Проект с2

BtH Back to Home


Фасад 1

Введенська 8 Проект Фас 1

BtH Back to Home


Фасад 2

Введенська 8 Проект Фас 2

BtH Back to Home


Фасад 3

Введенська 8 Проект Фас 3

BtH Back to Home


Фасад 4

Введенська 8 Проект Фас 4

BtH Back to Home


Фасад 5

Введенська 8 Проект Фас 5

BtH Back to Home


План підвалу

Введенська 8 План 0 Підвал

BtH Back to Home


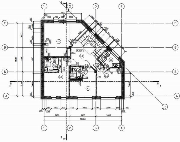
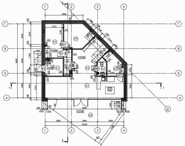
План - Поверх 1

Введенська 8 План 1

BtH Back to Home


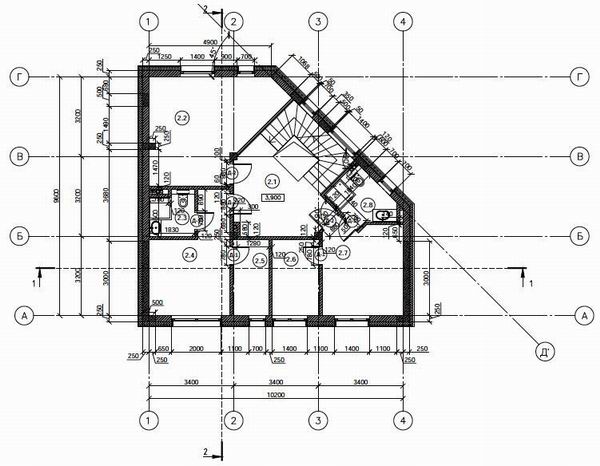
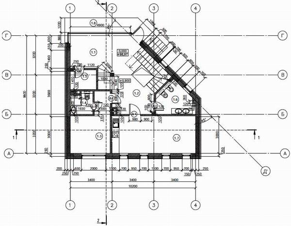
План - Поверх 2

Введенська 8 План 2

BtH Back to Home


План - Поверх 3

Введенська 8 План 3

BtH Back to Home


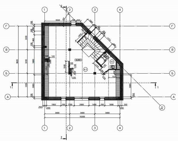
План - Поверх 4 Мансарда

Введенська 8 План 4 Манс

BtH Back to Home


Розріз 1-1

Введенська 8 Разр 1-1

BtH Back to Home


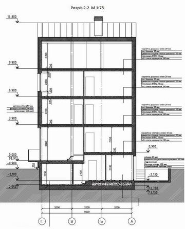
Розріз 2-2

Введенська 8 Разр 2-2

BtH Back to Home


Розгортка

Введенська 8 Проект с3


BtH Back to Home